设计快讯设计快讯
设计导航
最新
设计资讯
设计案例
设计知识

捷克山地住宅用传统木屋搭出现代观景宅

2025-11-11 11:29:43

主要图片

当品牌LOGO由儿童操刀?设计师把项目丢给6岁儿子,随手一笔竟成了面包店爆款视觉!

2025-11-10 10:23:30

图片 1
图片 2
图片 3
图片 4
+2

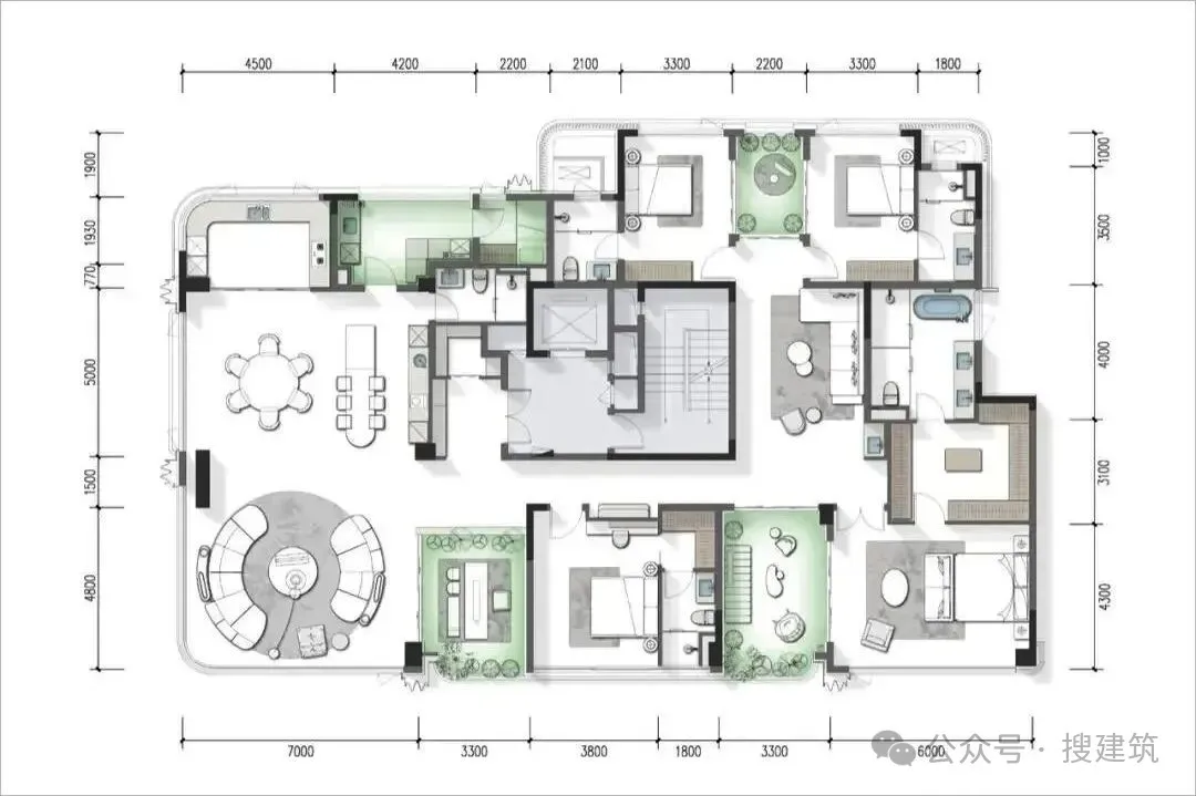
成都高品质住宅设计放大招,精品楼盘考察能学经验

2025-11-09 16:29:21

图片 1
图片 2
图片 3
图片 4
+3

纽约上东区传奇马车库变艺术收藏家宅邸设计案例

2025-11-07 17:51:39

图片 1
图片 2
图片 3
图片 4
+5

深圳大悦城地铁站风亭改造:城市的风景 / Mur Mur Lab

2025-11-06 15:34:30

图片 1
图片 2
图片 3
图片 4
+5

行业热点

  • 1户型设计新宠“全景舱”:从豪宅火到中小面积段
  • 22025 Wallpaper*中文版设计大奖优胜揭晓
  • 3杭州保利臻和雅颂非遗伞江南景观社区竟成设计参考样本
  • 46个禅意茶室设计案例:传统意境撞当代手法超有料
  • 5隈研吾武汉酒店未完工竹节立面被嘲“凉席大厦”引争议
  • 6又背锅!景观水景变绊人石 设计师冤似广州棺材地铁口
  • 7常熟东原九章赋:苏式宋韵+现代设计打造低密居住园
  • 8老化肥厂变城市公共空间!松江三里仓1958新旧共生设计
  • 9科举博物馆120米长入口,藏着室内设计空间转换秘诀
  • 10Autodesk严打盗版CAD,设计院禁⽤倒逼设计师直面合规成本