设计快讯设计快讯
设计导航
最新
设计资讯
设计案例
设计知识

葡萄牙布拉加Atlas项目:废墟加建木质穹顶变社区中心

2025-09-18 10:47:46

图片 1
图片 2
图片 3
图片 4
+4

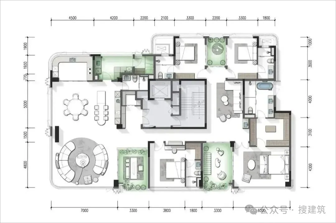
成都高端改善新住宅频现设计创新 邀设计师考察

2025-11-03 13:33:00

图片 1
图片 2
图片 3
图片 4
+3

广州白云站TOD新进展 何镜堂岭南现代设计有看头

2025-11-03 10:40:37

图片 1
图片 2
图片 3
图片 4
+5

法国Mortagne项目靠架空木结构悬浮体实现新旧建筑共生

2025-11-03 10:11:50

图片 1
图片 2
图片 3
图片 4
+2

老城区公交站升级低碳复合枢纽!广州中山八路设计案例

2025-11-02 10:55:17

图片 1
图片 2
图片 3
图片 4
+2

行业热点

  • 1一层一户,新玩法!! 真正的大平层(300-400㎡面积段)
  • 2消隐的公厕 - 大吉巷市政公共厕所改造 / DAGA大观建筑
  • 3CCD郑中设计 | 新加坡爱马仕甜品旗舰店
  • 4别错过!室内设计师可免费领2025深圳酒店家具展权益
  • 512.16-18深圳第三届博华联展:设计人必看全产业链大展
  • 6藏不住了!设计师必看的干货号+俄罗斯240㎡轻奢案
  • 7成都华润天宸上院纯改善四代住宅公园森居设计案例
  • 8UNION操刀上海阿特拉斯·科普柯1.6万㎡新办公创新中心
  • 9彼得·埃森曼中国首次个展2025年9月开幕 帮设计师解码空间逻辑
  • 10合肥中海·悦府雲起运动会所:柘壹以“悬浮”造东方现代奢雅空间