设计快讯设计快讯
设计导航
最新
设计资讯
设计案例
设计知识

警惕!6种常见结构加固方法不懂易返工坍塌

2025-08-02 12:02:00

合肥合柴1972废弃看守塔变24h暖心小书店

2026-01-19 19:36:17

图片 1
图片 2
图片 3
图片 4
+2

成都七中两栋80年代老建筑改学科融合中心

2026-02-11 08:52:54

主要图片

合肥合柴1972监狱看守塔竟变24h小书店设计案例

2026-01-28 10:59:31

主要图片

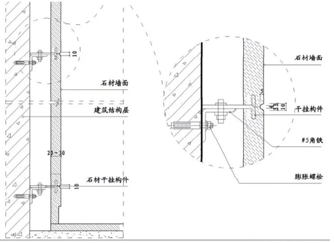
装饰工程细部节点工艺图集:解决墙顶地施工通病

2026-01-21 20:02:00

图片 1
图片 2
图片 3
图片 4
+2
已经到底啦~

行业热点

  • 1设计师愁2026家装出图慢?这套动态CAD图库救急
  • 2挪威奥斯陆新政府区竣工 北欧“民主设计”成行政空间样本
  • 3老八校建筑系51岁副教授离世引室内设计圈思传承健康
  • 4汪苏泷“十万伏特2.0”演唱会靠“罗曼城”沉浸式设计获iF2026奖
  • 5设计师狂喜!西班牙艺术家“门户”系列用裂隙玩光带感知新灵感
  • 6室内设计师注意!吊灯固定需守3kg红线避安全隐患
  • 7伦敦LCC6位华人插画毕业生作品藏室内设计新灵感
  • 8现代混凝土+传统智慧,改造巴林历史商业建筑
  • 92026年装修需做“适女化设计”?7个核心要点别错过!
  • 10福特全球总部改造“活态实验室”园区成设计新范式