室内设计师必看!适老化厨房5种布局尺寸+安全建议

内容概述

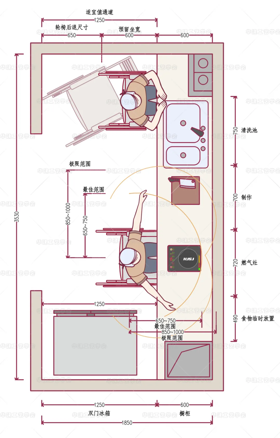
本文聚焦适老化住宅厨房平面设计,提供5种常见布局的最小尺寸指引及安全配置建议,是室内设计师做适老化厨房设计的实用参考。

1. 需掌握5种厨房布局的最小尺寸要求——单边厨房约6.53㎡(长3.53m、宽1.85m)、双边通道式约7.5㎡(长3m、宽2.5m)、L型约6.66㎡(长3.59m、宽1.85m)、U型约7.19㎡(长3.3m、宽2.18m)、开放式约9.28㎡(长3.2m、宽2.9m),需据此为轮椅人士预留充足的转弯、进出空间;

2. 需补充安全配置设计——针对老年人易忘关火、天然气泄漏不易察觉的隐患,尤其独居老人家庭,设计时需在厨房增加感应报警器,降低安全风险。

查看详细报道